Nội dung
Hồ sơ bản vẽ xin cấp phép xây dựng là một trong những thủ tục bắt buộc phải có để được cơ quan có thẩm quyền xem xét cấp phép. Bạn đang cần bản vẽ xin phép xây dựng hãy cùng tìm hiểu ngay sau đây với KASAI để biết các mục cần chuẩn bị nhé!

Hồ sơ bản vẽ xin cấp phép xây dựng là gì?
Hồ sơ bản vẽ xin cấp phép xây dựng là một bộ tài liệu thể hiện chi tiết bản vẽ của ngôi nhà bao gồm cả vị trí, mặt bằng, mặt đứng, mặt cắt công trình. Dựa vào hồ sơ này cơ quan thẩm quyền sẽ xem xét công trình có đảm bảo quy hoạch, kiến trúc, an toàn xây dựng hay không và cấp phép để thi công.
Hồ sơ bản vẽ xin cấp phép xây dựng bao gồm những gì?
Trong hồ sơ bản vẽ xin cấp phép xây dựng sẽ gồm có các mục sau:
1.Thông tin công trình
Thông tin công trình sẽ thể hiện cho loại hình công trình là gì (nhà ở gia đình hay căn hộ, khách sạn…), thông tin chủ đầu tư là ai (chính là chủ đất), vị trí công trình cụ thể và đơn vị thiết kế

2. Sơ đồ vị trí công trình
Sơ đồ công trình sẽ thể hiện được vị trí của lô đất, hướng đất kèm theo chú thích rõ về địa chỉ, diện tích xây dựng của từng tầng, chiều cao công trình, số tầng

3. Bản vẽ mặt bằng tổng thể
Bản vẽ mặt bằng tổng thể sẽ cho thấy diện tích xây dựng so với tổng diện tích lô đất.

» Tìm hiểu thêm: Bản vẽ hoàn công là gì?
4. Mặt bằng các tầng
Thể hiện sự bố trí không gian chức năng của từng tầng (tầng trệt, lửng, lầu, mái, tầng 1, tầng 2, tầng 3… và chi tiết công năng diện tích)

5. Mặt đứng
Thể hiện hình dáng và chiều cao của công trình từ các hướng nhìn.

6. Mặt cắt
Mô tả cấu tạo tổng thể của công trình theo chiều đứng.

7. Mặt bằng móng
Chi tiết về móng công trình.


8. Các bản vẽ đấu nối ạ tầng kỹ thuật
Gồm đấu nối hệ thống cấp nước, thoát nước, cấp điện.



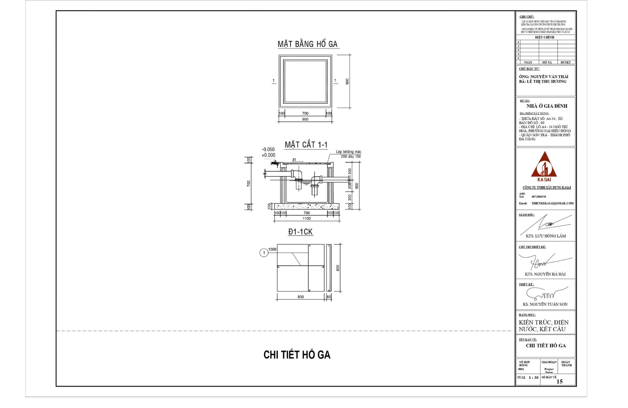
9. Bản vẽ thiết kế hầm cầu


Thủ tục và cách xin giấy phép xây dựng mới nhất 2026
Hồ sơ xin cấp phép xây dựng gồm những gì? Không chỉ bao gồm bản vẽ xin phép mà còn có các thành phần sau đây:
- Đơn xin phép cấp phép xây dựng nhà ở
- Bản sao giấy tờ chứng minh quyền sở hữu đất
- Bản cam kết bảo đảm an toàn với công trình liền kề
- Bản vẽ xin cấp phép xây dựng
- Giấy tờ bổ sung khác
Sau khi đã có đầy đủ bộ hồ sơ xin phép xây dựng bạn tiến hành nộp hồ sơ tại UBND cấp phường (sau sáp nhập) hoặc nộp online tại dichvucong.gov.vn. Lệ phí thông thường là từ 50.000đ đến 150.000đ tùy địa phương quy định. Thời hạn để quyết định cấp phép là từ 7 ngày kể từ ngày nhận hồ sơ.
» Tham khảo: File excel bảng dự toán chi phí xây nhà
Giải đáp các câu hỏi thường gặp về hồ sơ bản vẽ xin cấp phép xây dựng
Khung tên bản vẽ xin phép xây dựng cad là gì?
Khung tên bản vẽ hay bìa hồ sơ xin cấp phép xây dựng là thành phần bắt buộc cần có nội dung gồm:
- Tên dự án: Ví dụ: Nhà ở gia đình, Nhà phố, Biệt thự,…
- Chủ đầu tư: Tên người đứng tên xin phép.
- Địa điểm xây dựng: Địa chỉ chính xác theo sổ đỏ.
- Đơn vị thiết kế: Tên công ty hoặc cá nhân thiết kế (nếu có).
- Tên bản vẽ: Ví dụ: Mặt bằng tổng thể, Mặt đứng chính, Mặt cắt A-A.
- Tỷ lệ bản vẽ: 1/50, 1/100, 1/200…
- Số bản vẽ: Ví dụ: KT-01/05.
- Ngày ký/Ngày lập.
Kích thước phổ biến của khung tên bản vẽ xin giấy phép xây dựng là 140x50mm hoặc 140x60mm
Khổ giấy bản vẽ xin phép xây dựng là bao nhiêu?
Hiện chưa có quy định cụ thể bắt buộc về khổ giấy bản vẽ xin phép xây dựng. Tuy nhiên, các công ty xây dựng thường in trên khổ A3 hoặc A4
Kết Luận
Hồ sơ bản vẽ xin cấp phép xây dựng sẽ bao gồm nhiều hạng mục khác nhau như thông tin công trình, sơ đồ vị trí, mặt bằng tổng thể, mặt bằng các tầng, mặt đứng, mặt cắt, móng, điện, nước, hố ga, hầm cầu. Hãy chọn lựa công ty thiết kế có uy tín như KASAI -10 năm kinh nghiệm để được hỗ trợ hồ sơ đầy đủ và nhanh chóng được cấp phép xây dựng nhé!
Thông tin liên hệ và báo giá
- Liên hệ: 0931393270 – 0972903570
- FACEBOOK: https://www.facebook.com/Ceoluuhonglam/
- FANFAGE: https://www.facebook.com/xaydungkasai
- WEBSITE: https://kasai.com.vn/ – https://thietkenhakasai.com/
- ZALO: 0931393270 – 0972903570
Địa chỉ chi nhánh:
- Đà Nẵng: 62 Xuân Thủy – Cẩm Lệ – Đà Nẵng
- Hà Nội CN1: Số 80 đường Đa Phúc, xã Đa Phúc, thành phố Hà Nội
- Hà Nội CN2: Tòa nhà BRC, số 5/76 Trần Thái Tông, phường Nghĩa Đô, Hà Nội
- Hà Nội CN3: Tầng 4, Tháp B1 Roman Plaza, Tố Hữu, phường Xuân Phương, Hà Nội
- Hải Phòng: 16 lô 3B KĐTM Lê Hồng Phong, phường Ngô Quyền, TP. Hải Phòng
- Nghệ An CN1: 23 Nguyễn Phong Sắc, phường Trường Vinh, TP. Vinh, tỉnh Nghệ An
- Nghệ An CN2: 42 Phan Đình Phùng, phường Thành Vinh, TP. Vinh, tỉnh Nghệ An
- Hà Tĩnh CN1: Tầng 6 – Bình Thủy Building, 24A đường Phan Đình Phùng, phường Thành Sen, TP. Hà Tĩnh
- Hà Tĩnh CN2: 570 Đ. Lê Đại Hành, phường Sông Trí, TX. Kỳ Anh, Hà Tĩnh
- Quảng Trị (trước thuộc Quảng Bình): 136 Lý Thường Kiệt, phường Đồng Hới, TP. Đồng Hới, tỉnh Quảng Trị
- Hồ Chí Minh CN1: 142 Võ Văn Tần, phường Xuân Hòa, TP. Hồ Chí Minh
- Hồ Chí Minh CN2: Tầng 9 – 85 Cách Mạng Tháng Tám, phường Bến Thành, TP. Hồ Chí Minh
- CN Tây Nguyên: 181 Ama Khê, Buôn Ma Thuột, Đắk Lắk
Xem thêm:
- Các mẫu nhà phố 5×20 đẹp xuất sắc ai cũng mê mẩn
- Mẫu nhà ống 3 tầng 5m đẹp hiện đại đừng bỏ lỡ
- Mẫu nhà ngang 5m dài 25m ấn tượng không thôi
