Thiết kế nhà vườn 400m2 mái Nhật sang trọng tinh tế từng đường nét
Nội dung
Nhà vườn 400m2 mái Nhật siêu hiện đại, rộng rãi và đầy sự sang trọng mang đến không gian sống cực kỳ thoáng đãng, gần gũi thiên nhiên. Những gia chủ muốn một ngôi nhà thanh toán, vững chãi và tinh tế đừng bỏ lỡ ngôi nhà ấn tượng này nhé!
Thiết kế nhà vườn 400m2 mái Nhật vừa hiện đại lại gần gũi với thiên nhiên
Biệt thự 1 tầng 400m2 được thiết kê stheo phong cách hiện đại tối giản với điểm nhấn là mái Nhật trải rộng và những mảng tường ốp đá siêu sang.
Vẻ đẹp thanh thoát, gần gũi thiên nhiên
Là nhà vườn nên không gian sân vườn rất rộng rãi giúp gia chủ có thể làm gara ô tô, có thể trồng cây, làm tiểu cảnh sân vườn sống hòa quyệt cùng thiên nhiên. Bố cục ngôi nhà rất rõ ràng, các đường nét vuông vắn tối giản mang đến vẻ đẹp hiện đại mà lại rất gần gũi.

Không gian sống siêu rộng rãi với kiểu bố cục sân vườn, xunh quanh nhà đều thiết kế mảng cửa kính thay cho tường bê tông vì vậy mà nhà vườn 400m2 luôn sáng thoáng.

Ấn tượng với tone màu trung tính sang trọng
Tone màu sử dụng trong ngôi nhà này là xám và trắng kết hợp cùng màu nâu gỗ của trần nhà. Tất cả hòa quyện tạo nên không gian sang trọng mà ấm cúng. Đặc biệt các mảng tường

ĐỂ LẠI THÔNG TIN KIẾN TRÚC SƯ KASAI SẼ TƯ VẤN NGAY LẬP TỨC
Ngôi nhà mái Nhật tối giản siêu rộng rãi
Ngôi nhà mang một vẻ đẹp thanh thoát nhờ mái Nhật dốc nhẹ, đua rộng tone màu xám đậm gần gũi. Mái Nhật giúp ngôi nhà che nắng thoát mưa hiệu quả ngoài ra còn tạo cảm giác cao ráo với đỉnh nhỏ ở trên.

Không gian sống đẳng cấp với mẫu nhà vườn mái Nhật 1 tầng
Với một biệt thự vườn 400m2 không gian sống bên trong cực rộng rãi. Gia chủ có thể bố trí mọi công năng mình muốn với diện tích phù hợp cho sinh hoạt gia đình. Nội thất được sử dụng là những nội thất cao cấp với phong cách tối giản nhưng vẫn giữ được sự hiện đại của không gian sống.









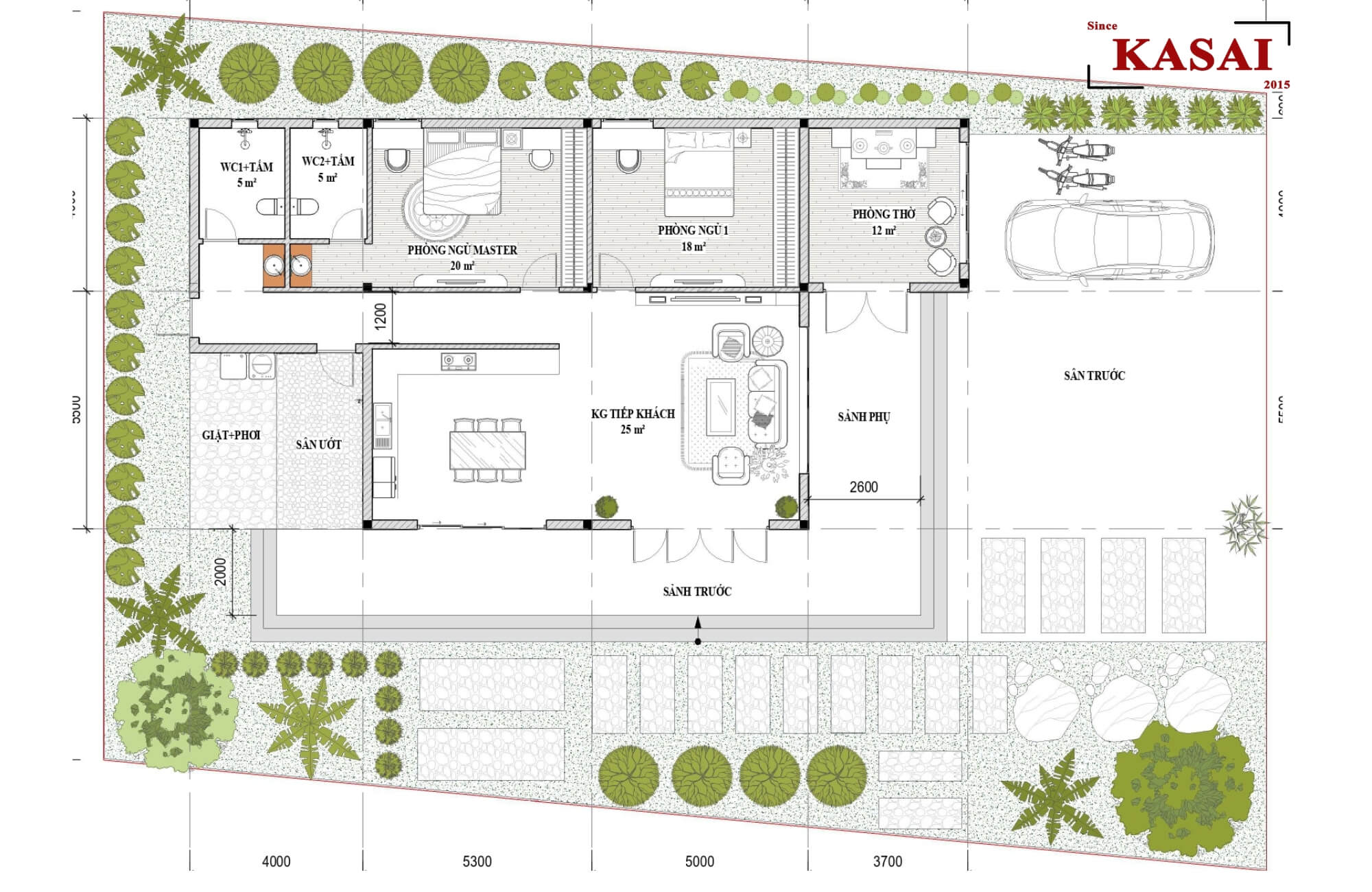
Bản vẽ thiết kế nhà vườn mái Nhật 400m2 siêu rộng rãi
Trong ngôi nhà 1 tầng mái Nhật này gia chủ yêu cầu thiết kế 2 phòng và 1 phòng thờ còn lại là không gian cho phòng khách, bếp, WC. Công ty thiết kế nhà ở Hà Tĩnh đã nắm bắt yêu cầu và lên bản vẽ công năng cực chuẩn chỉnh. Gia chủ có thể thoải mái sinh hoạt trong những căn phòng rộng rãi, đầy đủ tiện nghi và phù hợp với phong thủy.

Nhà mái Nhật Tân cổ điển tại Hà Tĩnh – Nổi bật một khung trời riêng
Thông tin chi tết dự ánh nhà vườn 400m2 mái Nhật của KASAI
- Chủ đầu tư: Anh Khánh
- Địa chỉ: Hà Tĩnh
- Diện tích: 17x26m (hơn 400m2)
- Thiết kế: Công ty tư vấn thiết kế và xây dựng KASAI
Nếu thích không gian sống chan hòa ánh sáng và thiên nhiên đừng chần chừ liên hệ KASAI để được thiết kế mẫu nhà vườn 400m2 đúng ý bạn. Dù với phong cách nào, diện tích nào KASAI cũng có thể biến những ý tưởng thành bản vẽ đẹp mắt và hiện thực hóa thi công.
Thông tin liên hệ và báo giá
- Liên hệ: 0931393270 – 0972903570
- FACEBOOK: https://www.facebook.com/Ceoluuhonglam/
- FANFAGE: https://www.facebook.com/xaydungkasai
- WEBSITE: https://kasai.com.vn/ – https://thietkenhakasai.com/
- ZALO: 0931393270 – 0972903570
Địa chỉ chi nhánh:
- Đà Nẵng: 62 Xuân Thủy – Cẩm Lệ – Đà Nẵng
- Hà Nội CN1: Số 80 đường Đa Phúc, xã Đa Phúc, thành phố Hà Nội
- Hà Nội CN2: Tòa nhà BRC, số 5/76 Trần Thái Tông, phường Nghĩa Đô, Hà Nội
- Hà Nội CN3: Tầng 4, Tháp B1 Roman Plaza, Tố Hữu, phường Xuân Phương, Hà Nội
- Hải Phòng: 16 lô 3B KĐTM Lê Hồng Phong, phường Ngô Quyền, TP. Hải Phòng
- Nghệ An CN1: 23 Nguyễn Phong Sắc, phường Trường Vinh, TP. Vinh, tỉnh Nghệ An
- Nghệ An CN2: 42 Phan Đình Phùng, phường Thành Vinh, TP. Vinh, tỉnh Nghệ An
- Hà Tĩnh CN1: Tầng 6 – Bình Thủy Building, 24A đường Phan Đình Phùng, phường Thành Sen, TP. Hà Tĩnh
- Hà Tĩnh CN2: 570 Đ. Lê Đại Hành, phường Sông Trí, TX. Kỳ Anh, Hà Tĩnh
- Quảng Trị (trước thuộc Quảng Bình): 136 Lý Thường Kiệt, phường Đồng Hới, TP. Đồng Hới, tỉnh Quảng Trị
- Hồ Chí Minh CN1: 142 Võ Văn Tần, phường Xuân Hòa, TP. Hồ Chí Minh
- Hồ Chí Minh CN2: Tầng 9 – 85 Cách Mạng Tháng Tám, phường Bến Thành, TP. Hồ Chí Minh
- CN Tây Nguyên: 181 Ama Khê, Buôn Ma Thuột, Đắk Lắk
Xem thêm:
- Các mẫu nhà phố 5×20 đẹp xuất sắc ai cũng mê mẩn
- Mẫu nhà ống 3 tầng 5m đẹp hiện đại đừng bỏ lỡ
- Mẫu nhà ngang 5m dài 25m ấn tượng không thôi
