10+ Thiết kế nhà mặt tiền 7m sâu 12m – Nhà 7x12m đẹp hiện đại
Nội dung
- 1 Thiết kế nhà 3 tầng 7x12m hiện đại vuông vức giữa phố
- 2 Thiết kế nhà 2 tầng tối giản, sang trọng với không gian mở
- 3 Mẫu nhà 2 tầng 7x12m vuông vắn và xanh mát
- 4 Mẫu thiết kế nhà 2 tầng rộng 7m sâu 12m chữ L
- 5 Nhà 7x12m 2 mặt tiền thiết kế góc cạnh cuốn hút
- 6 Nhà 2 tầng 1 tum ngang 7m rộng 12m siêu hiện đại
- 7 7×12 ngang 7m thiết kế nhà cấp 4 7x12m
Thiết kế nhà mặt tiền 7m sâu 12m vừa hiện đại lại pha chút truyền thống mang đến cảm giác rất gần gũi nhưng cũng rất hợp ở phố. Ngôi nhà có rất nhiều điểm nhấn khác nhau lan tỏa từ cổng đến mái tạo nên sự thống nhất trong mặt tiền thu hút bất kỳ ai lướt ngang qua. Cùng tham khảo ngay hình ảnh 3D, bản vẽ chi tiết mẫu nhà này bên dưới và liên hệ Kasai tư vấn nếu yêu thích nhé!
Thiết kế nhà 3 tầng 7x12m hiện đại vuông vức giữa phố
Ngôi nhà 7x12m được thiết kế như kiểu một ngôi nhà phố siêu vuông vức với mặt tiền hiện đại và kiểu nhà chữ L sang trọng. Tone màu sử dụng là trắng phối xám nâu gỗ giúp không gian sống trở nên sang và sang hơn bao giờ hết.




Thiết kế nhà 2 tầng tối giản, sang trọng với không gian mở
Điều đặc biệt trong thiết kế nhà mặt tiền 7m sâu 12m là được thiết kế theo phong cách tối giản nhưng lại có nhiều điểm nhấn thu hút.
Phần mái nhà được thiết kế kiểu mái chữ A cách điệu lệch qua một bên với phần trên nhọn và phần trước được sử dụng gạch bông gió mang đến cảm giác cực thẩm mỹ và thoáng mát. Ở tầng 2 là khối hộp nhô ra với hệ lam gỗ đứng vừa che nắng vừa lấy gió và ánh sáng cho ngôi nhà và đèn gắn tường nghệ thuật như một ô vuông nhỏ mang đến sự hiện đại và đầy thu hút. Còn phần cổng nổi bật với thiết kế cửa sắt kết hợp tường ốp đá xám hiện đại hợp với không gian ở phố xá nhộn nhịp.

Với tone màu trắng sáng, nâu gỗ và xám ngôi nhà tạo cảm giác vừa hiện đại sang trọng lại gần gũi ấm cúng. Không gian sống rất thoáng đãng khi có nhiều khoảng không cho gió nắng len vào từng góc nhà.

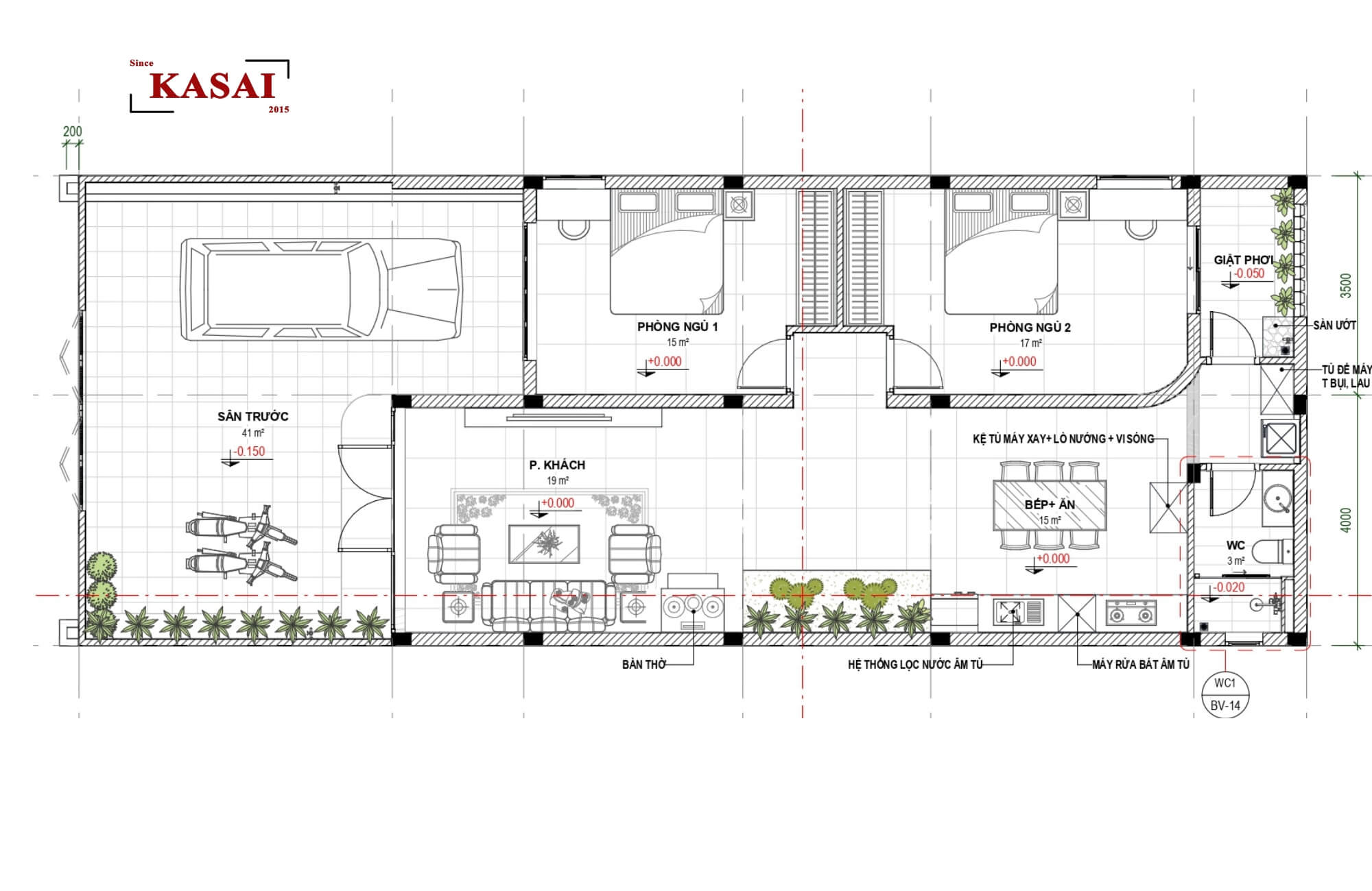
Không gian sống tiện nghi trong nhà 2 tầng 7x12m
Bên trong nhà 2 tầng 7x12m không gian sống vừa hiện đại lại vừa ấm cúng với sự rộng rãi nhờ sự bố trí hợp lý của kiến trúc sư.











KASAI cùng khách hàng hiện thực hóa không gian sống đậm chất riêng
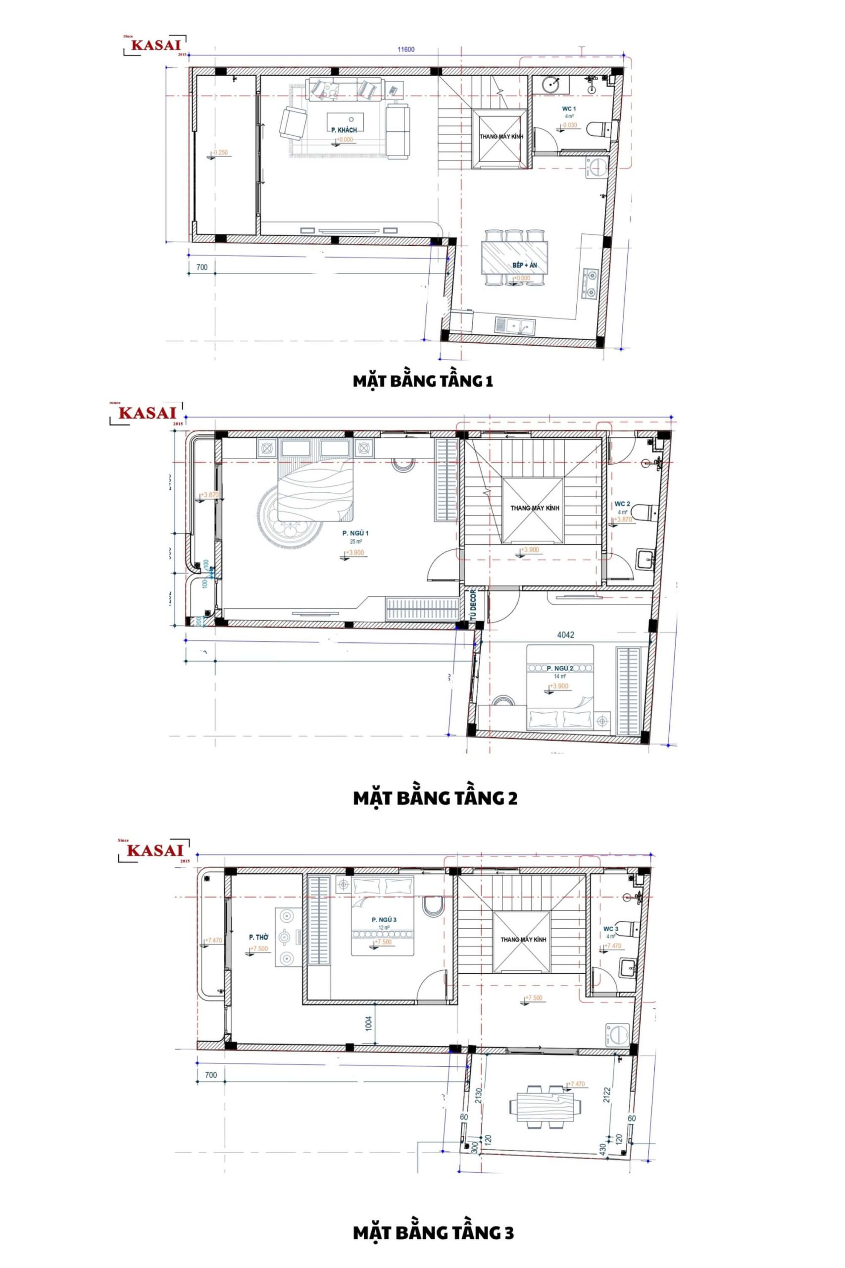
Bản vẽ thiết kế nhà mặt tiền 7m sâu 12m đầy đủ công năng sinh sống
Ngôi nhà phố 2 tầng được thiết kế với 3 phòng ngủ rộng rãi và đầy đủ các công năng khác cho gia chủ sinh hoạt. Không gian sống bố trí song song với diện tích phù hợp cho di chuyển của gia đình.
Mặt bằng công năng ngôi nhà như sau:
- Tầng 1: Phòng khách, phòng bếp, phòng ngủ 1, WC.
- Tầng 2: Phòng thờ, phòng ngủ 2, phòng ngủ 3, WC.

Thông tin chi tiết dự án nhà 7x12m của Kasai
- Chủ đầu tư: Anh Hoàng
- Địa chỉ: Thiết kế nhà Hà Tĩnh
- Diện tích: 7x12m
- Thiết kế: Công ty kiến trúc Kasai
Mẫu nhà 2 tầng 7x12m vuông vắn và xanh mát
Ngôi nhà 2 tầng 7x12m được thiết kế theo phong cách hiện đại tối giản sử dụng tone màu trắng phối hợp cùng nâu gỗ, nâu đà và hệ cửa kính giúp không gian trở nên sang trọng mà gần gũi.





Mẫu thiết kế nhà 2 tầng rộng 7m sâu 12m chữ L
Một kiểu nhà chữ L 2 tầng rộng 7m sâu 12m đang được ưa chuộng hiện nay đã được KASAI thực hiện rất nhiều trong thời gian vừa gia. Với không gian cực thoáng đãng, hệ mái nhật thu hút cùng tone màu trung tính gần gũi mang đến không gian cực kỳ hiện đại mà sang sáng.




Nhà 7x12m 2 mặt tiền thiết kế góc cạnh cuốn hút
Nếu bạn có căn nhà 2 mặt tiền diện tích 7x12m hãy tham khảo ngay mẫu thiết kế dưới đây của KASAI. Mẫu nhà được thiết kế vát vạch tạo không gian cực kỳ thu hút giữa phố vừa hiện đại, lạ mắt lại cực sang




Nhà 2 tầng 1 tum ngang 7m rộng 12m siêu hiện đại
Nhà 2 tầng 1 tum diện tích 7x12m siêu khang trang như một biệt thự giữa phố khiến ai cũng phải ngắm nhìn. Kiểu thiết kế mái Nhật kết hợp cùng mảng tường bo cong ở ban công tầng 2 mang đến cho ngôi nhà sự nổi bật điểm nhấn ấn tượng. Không gian cũng vô cùng xanh mát với ban công rộng, sân thượng trên cao cực chill.

7×12 ngang 7m thiết kế nhà cấp 4 7x12m
Nếu muốn thiết kế nhà cấp 4 đẹp diện tích 7 x12m hãy tham khảo ngay mãu nhà hiện đại dưới đây. Kiểu thiết kế mái bằng sử dụng chi tiết bo cong ở các góc cửa làm điểm nhấn giúp ngôi nhà trở nên trẻ trung, sinh động và đầy sức sống.



Thiết kế nhà mặt tiền 7m sâu 12m hiện đại và nổi bật giữa phố với những điểm nhấn ấn tượng, tone màu khác biệt đầy thu hút. Mỗi ngôi nhà phù hợp cho mọi độ tuổi gia chủ khác nhau thích phong cách tối giản, hiện đại. Nếu yêu thích ngôi nhà nào đừng chần chừ liên hệ Kasai tư vấn ngay nhé!
- Thông tin liên hệ và báo giá
- Liên hệ: 0931393270 – 0972903570
- FACEBOOK: https://www.facebook.com/Ceoluuhonglam/
- FANFAGE: https://www.facebook.com/xaydungkasai
- WEBSITE: https://kasai.com.vn/ – https://thietkenhakasai.com/
- ZALO: 0931393270 – 0972903570
Địa chỉ chi nhánh:
- Đà Nẵng: 62 Xuân Thủy – Cẩm Lệ – Đà Nẵng
- Hà Nội CN1: Số 80 đường Đa Phúc, xã Đa Phúc, thành phố Hà Nội
- Hà Nội CN2: Tòa nhà BRC, số 5/76 Trần Thái Tông, phường Nghĩa Đô, Hà Nội
- Hà Nội CN3: Tầng 4, Tháp B1 Roman Plaza, Tố Hữu, phường Xuân Phương, Hà Nội
- Hải Phòng: 16 lô 3B KĐTM Lê Hồng Phong, phường Ngô Quyền, TP. Hải Phòng
- Nghệ An CN1: 23 Nguyễn Phong Sắc, phường Trường Vinh, TP. Vinh, tỉnh Nghệ An
- Nghệ An CN2: 42 Phan Đình Phùng, phường Thành Vinh, TP. Vinh, tỉnh Nghệ An
- Hà Tĩnh CN1: Tầng 6 – Bình Thủy Building, 24A đường Phan Đình Phùng, phường Thành Sen, TP. Hà Tĩnh
- Hà Tĩnh CN2: 570 Đ. Lê Đại Hành, phường Sông Trí, TX. Kỳ Anh, Hà Tĩnh
- Quảng Trị (trước thuộc Quảng Bình): 136 Lý Thường Kiệt, phường Đồng Hới, TP. Đồng Hới, tỉnh Quảng Trị
- Hồ Chí Minh CN1: 142 Võ Văn Tần, phường Xuân Hòa, TP. Hồ Chí Minh
- Hồ Chí Minh CN2: Tầng 9 – 85 Cách Mạng Tháng Tám, phường Bến Thành, TP. Hồ Chí Minh
- CN Tây Nguyên: 181 Ama Khê, Buôn Ma Thuột, Đắk Lắk

