Nhà cấp 4 mái Nhật 3 phòng ngủ 150m2 đẹp không góc chết
Nội dung
Nhà cấp 4 mái Nhật 3 phòng ngủ 150m2 đơn giản mà cực kỳ tinh tế với kiểu mái Nhật trải rộng màu nâu xám kết hợp cùng các mảng tường vuông vức, cửa gỗ mang đến sự ấm cúng cho không gian sống. Ngôi nhà phù hợp cho cả khu vực nông thôn lẫn thành thị với sự hiện đại, sang trọng của mình. Cùng khám phá ngay ngôi nhà này bên dưới và liên hệ KASAI tư vấn ngay nhé!
Thiết kế nhà cấp 4 với mái Nhật hiện đại và sang trọng
Nhà cấp 4 mái Nhật hay còn gọi là nhà mái lùn kiểu Nhật mang phong cách hiện đại, sang trọng và đầy sự gần gũi. Bố cục cân đối, tone màu xám trắng nâu gỗ kết hợp hài hòa mang đến sự tinh tế cho không gian sống. Đây là mẫu nhà cấp 4 chuẩn tiện nghi mà khách hàng khong nên bỏ lỡ khu muốn xây nhà 1 tầng ở phố, ở nông thôn.
Kiểu nhà vườn mái Nhật đơn giản mà tinh tế
Phần mái Nhật được thiết kế kiểu 1 mái đua rộng ra 4 góc tạo cảm giác rất chắc chắn và an toàn trong căn nhà bê tông cốt thép. Mái ngói được sử dụng tone màu xám đen nhẹ nhàng mà sang trọng thu hút.


ĐỂ LẠI THÔNG TIN KIẾN TRÚC SƯ KASAI SẼ TƯ VẤN NGAY LẬP TỨC
Kiến trúc mở hiện đại siêu thoáng đãng
Phía trước nhà là hàng cổng mang phong cách hiện đại pha chút tân cổ điển với những chi tiết hàng rào sắt hoa văn và đèn cổ kính kết hợp cùng đá ốp trụ mang đến không gian cực sang cho nhà cấp 4. Với mặt tiền rộng rãi lên đến 12m x13m gia chủ có thể thoải máu bố trí sân vườn cho căn nhà này. Tạo không gian sống siêu thoáng đãng, xanh mát với nhiều vị trí cho cây xanh.


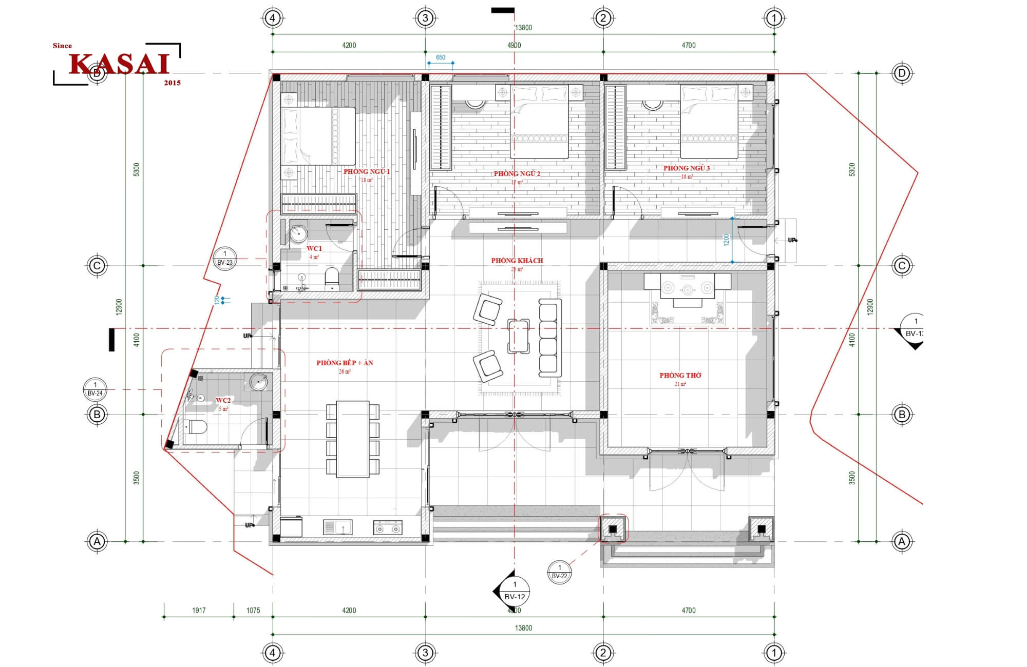
Bản vẽ thiết kế nhà cấp 4 mái nhật 3 phòng ngủ 150m2 tối ưu công năng sử dụng
Gia chủ yêu cầu thiết kế nhà 1 tầng có đến 3 phòng ngủ, điều này thực tế rất đơn giản trong diện tích hơn 150m2 của ngôi nhà này. Công ty thiết kế nhà Nghệ An đã thiết kế nhà làm 2 không gian chính, không gian phía trước là phòng khách, bếp, phòng thờ còn không gian phía trong là phòng ngủ liên tiếp nhau.
Cách bố trí này giúp cho gia chủ có không gian sinh hoạt chung rộng rãi và thoải mái. Đồng thời không gian nghri ngơi được yên tĩnh và riêng tư hơn.

ĐỂ LẠI THÔNG TIN KIẾN TRÚC SƯ KASAI SẼ TƯ VẤN NGAY LẬP TỨC
Nhà mái Nhật Tân cổ điển tại Hà Tĩnh – Nổi bật một khung trời riêng
Không gian sống đẳng cấp với mẫu nhà vườn cấp 4 mái Nhật
Bên trong căn nhà cấp 4 mái Nhật 3 phòng ngủ 150m2 có thể thấy nội thất ưu tiên sử dụng chất liệu gỗ bao gồm cả vật liệu ốp tường. Điều này giúp cho không gian sống trở nên ấm cúng gần gũi hơn rất nhiều.





Thông tin chi tiết dự án nhà cấp 4 mái Nhật 3 phòng ngủ của KASAI
- Chủ đầu tư: Anh Phong
- Địa chỉ: Nghệ An
- Diện tích: 12x13m
- Thiết kế: Công ty kiến trúc KASAI
Mẫu nhà cấp 4 mái Nhật 3 phòng ngủ 150m2 vừa đầy đủ tiện nghi lại hiện đại rộng rãi như 1 biệt thự vườn sang trọng. Nếu yêu thích mẫu nhà này đừng chần chừ liên hệ KASAI tư vấn ngay hôm nay nhé!
Thông tin liên hệ và báo giá
- Liên hệ: 0931393270 – 0972903570
- FACEBOOK: https://www.facebook.com/Ceoluuhonglam/
- FANFAGE: https://www.facebook.com/xaydungkasai
- WEBSITE: https://kasai.com.vn/ – https://thietkenhakasai.com/
- ZALO: 0931393270 – 0972903570
Địa chỉ chi nhánh:
- Đà Nẵng: 62 Xuân Thủy – Cẩm Lệ – Đà Nẵng
- Hà Nội CN1: Số 80 đường Đa Phúc, xã Đa Phúc, thành phố Hà Nội
- Hà Nội CN2: Tòa nhà BRC, số 5/76 Trần Thái Tông, phường Nghĩa Đô, Hà Nội
- Hà Nội CN3: Tầng 4, Tháp B1 Roman Plaza, Tố Hữu, phường Xuân Phương, Hà Nội
- Hải Phòng: 16 lô 3B KĐTM Lê Hồng Phong, phường Ngô Quyền, TP. Hải Phòng
- Nghệ An CN1: 23 Nguyễn Phong Sắc, phường Trường Vinh, TP. Vinh, tỉnh Nghệ An
- Nghệ An CN2: 42 Phan Đình Phùng, phường Thành Vinh, TP. Vinh, tỉnh Nghệ An
- Hà Tĩnh CN1: Tầng 6 – Bình Thủy Building, 24A đường Phan Đình Phùng, phường Thành Sen, TP. Hà Tĩnh
- Hà Tĩnh CN2: 570 Đ. Lê Đại Hành, phường Sông Trí, TX. Kỳ Anh, Hà Tĩnh
- Quảng Trị (trước thuộc Quảng Bình): 136 Lý Thường Kiệt, phường Đồng Hới, TP. Đồng Hới, tỉnh Quảng Trị
- Hồ Chí Minh CN1: 142 Võ Văn Tần, phường Xuân Hòa, TP. Hồ Chí Minh
- Hồ Chí Minh CN2: Tầng 9 – 85 Cách Mạng Tháng Tám, phường Bến Thành, TP. Hồ Chí Minh
- CN Tây Nguyên: 181 Ama Khê, Buôn Ma Thuột, Đắk Lắk
