Căn hộ nhà phố cao tầng tối ưu diện tích đất và chi phí
Nội dung
Thiết kế căn hộ nhà phố cao tầng vừa tối ưu diện tích vừa tối ưu chi phí mà vẫn đầy đủ công năng sinh hoạt. Điều này chắc chắn chủ đầu tư nào cũng muốn được thực hiện. Căn hộ D-Apartment là một dự án thỏa mãn đầy đủ yêu cầu này với mặt tiền hiện đại, đầy điểm nhấn hưng cũng vô cùng tối ưu. Cùng xem ngay các hình ảnh về thiết kế này và liên hệ KASAI tư vấn nhé!
Mặt tiền uốn cong mềm mại giữa phố
Căn hộ 6 tầng được thiết kế với đường cong bo tròn liên tục ở ban công các tầng. Mảng cong này giúp không gian trở nên mềm mại và đầy sự chuyển động. Công trình căn hộ nhà ở cao tầng nhưng vẫn rất thanh toát không hề thô cứng lại vô cùng thu hút giữa phố.
Khối cong không chỉ làm công trình thêm thẩm mỹ, đẹp mắt mà còn tạo cảm giác rộng rãi, sang hơn so với diện tích thực của căn hộ. Giúp căn hộ trở nên nổi bật giữa phố mà không cần chi tiết cầu kỳ đắc tiền.

ĐỂ LẠI THÔNG TIN KIẾN TRÚC SƯ KASAI SẼ GỌI TƯ VẤN NGAY
Điểm nhấn lam gỗ nhẹ nhàng trên mặt tiền
Điểm nhấn lam gỗ ở tầng 2, tầng 3 là chi tiết rất quan trọng vì nó không chỉ tạo nên điểm chú ý nhẹ nhàng nơi góc nhà mà còn giúp cân bằng giữa đường cong và đường thẳng. Lam gỗ còn giúp kéo dài hơn mặt tiền, che chắn nắng hiệu quả ở hướng Tây.


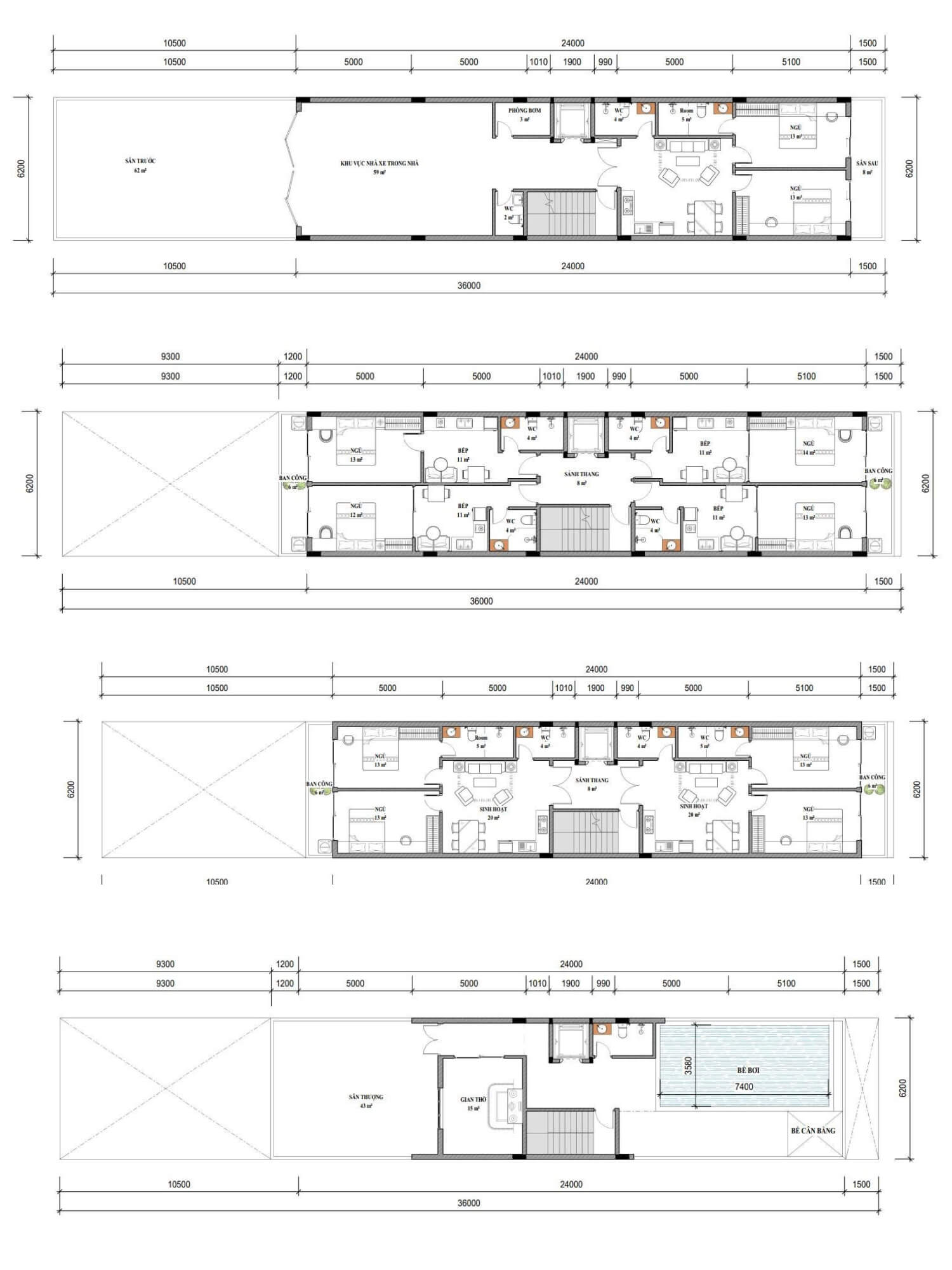
Mặt bằng căn hộ nhà phố cao tầng tối ưu diện tích, công năng, chi phí
Căn hộ được bố trí không gian rất rộng rãi với diện tích 6,2 x24m2. Mỗi tầng đều bố trí căn hộ cho thuê hợp lý với không gian rộng rãi, di chuyển, sinh hoạt thoải mái.

Không gian sống trong căn hộ mini siêu tiện nghi
Bên trong các căn hộ mini được bố trí nội thất nhỏ gọn, đầy đủ tối ưu diện tích nhất tạo cảm giác luôn rộng rãi, hiện đại. Với tone màu trắng phối nâu gỗ, xanh phù hợp cho từng không gian. Các căn hộ luôn sáng thoáng và trẻ trung, tạo cảm giác thư giãn, thoải mái nhất khi sinh hoạt.












Thông tin chi tiết dự án D- Apartment của KASAI
- Chủ đầu tư: Anh D
- Địa chỉ: Đà Nẵng
- Diện tích: 6,2mx24m
- Thiết kế: Công ty tư vấn thiết kế và xây dựng KASAI
Căn hộ nhà phố cao tầng vừa hiện đại sang trọng lại sáng thoáng đầy tiện nghi với chi phí tối ưu nhất. Nếu bạn cũng thích kiểu thiết kế căn hộ này đừng chần chừ liên hệ KASAI để được tư vấn nhé!
Thông tin liên hệ và báo giá
- Liên hệ: 0931393270 – 0972903570
- FACEBOOK: https://www.facebook.com/Ceoluuhonglam/
- FANFAGE: https://www.facebook.com/xaydungkasai
- WEBSITE: https://kasai.com.vn/ – https://thietkenhakasai.com/
- ZALO: 0931393270 – 0972903570
Địa chỉ chi nhánh:
- Đà Nẵng: 62 Xuân Thủy – Cẩm Lệ – Đà Nẵng
- Hà Nội CN1: Số 80 đường Đa Phúc, xã Đa Phúc, thành phố Hà Nội
- Hà Nội CN2: Tòa nhà BRC, số 5/76 Trần Thái Tông, phường Nghĩa Đô, Hà Nội
- Hà Nội CN3: Tầng 4, Tháp B1 Roman Plaza, Tố Hữu, phường Xuân Phương, Hà Nội
- Hải Phòng: 16 lô 3B KĐTM Lê Hồng Phong, phường Ngô Quyền, TP. Hải Phòng
- Nghệ An CN1: 23 Nguyễn Phong Sắc, phường Trường Vinh, TP. Vinh, tỉnh Nghệ An
- Nghệ An CN2: 42 Phan Đình Phùng, phường Thành Vinh, TP. Vinh, tỉnh Nghệ An
- Hà Tĩnh CN1: Tầng 6 – Bình Thủy Building, 24A đường Phan Đình Phùng, phường Thành Sen, TP. Hà Tĩnh
- Hà Tĩnh CN2: 570 Đ. Lê Đại Hành, phường Sông Trí, TX. Kỳ Anh, Hà Tĩnh
- Quảng Trị (trước thuộc Quảng Bình): 136 Lý Thường Kiệt, phường Đồng Hới, TP. Đồng Hới, tỉnh Quảng Trị
- Hồ Chí Minh CN1: 142 Võ Văn Tần, phường Xuân Hòa, TP. Hồ Chí Minh
- Hồ Chí Minh CN2: Tầng 9 – 85 Cách Mạng Tháng Tám, phường Bến Thành, TP. Hồ Chí Minh
- CN Tây Nguyên: 181 Ama Khê, Buôn Ma Thuột, Đắk Lắk



