Biệt thự 3 tầng mái Nhật đẹp hiện đại sau những đường cong
Nội dung
Biệt thự 3 tầng mái Nhật đẹp hiện đại được thiết kế ấn tượng với sự kết hợp của những đường bo cong, mái Nhật và tone màu trắng xám đầy thu hút. Nếu thích một ngôi nhà thật độc đáo, nhiều điểm nhấn nhưng lại không cầu kỳ, rườm rà đừng bỏ qua mẫu nhà đẹp này của KASAI nhé.
Biệt thự 3 tầng hiện đại xanh sáng nổi bật giữa phố
Biệt thự 3 tầng hiện đại được thiết kế với hình khối rõ ràng, mạch lạc gần gũi không phô trương. Điểm nhấn của ngôi nhà là những đường bo cong lớn ở ban công, mặt tiền tạo cảm giác rất uyển chuyển, dễ chịu. Ngôi nhà trông vừa hiện đại lại sang trọng, trẻ trung lại ấn tượng.

ĐỂ LẠI THÔNG TIN KIẾN TRÚC SƯ KASAI SẼ TƯ VẤN NGAY LẬP TỨC
Mái Nhật với tone xám và độ vươn rộng cao, chóp nhọn thẳng đứng giúp công trình trở nên cao lớn hơn vừa gọn gàng lại sang trọng, ấm cúng. KASAI còn bố trí thêm không gian cây xanh ở ban công tạo cảm giác rất bình yên, xanh mát.


Ngôi nhà của những sự bình yên và tiện nghi
Không gian bên trong được thiết kế với sự hiện đại, sang trọng và rộng rãi mang đến cuộc sống rất tiện nghi và bình yên cho gia chủ. Đây sẽ là một ngôi nhà đủ sang để tự hào, để ấm để trở về.










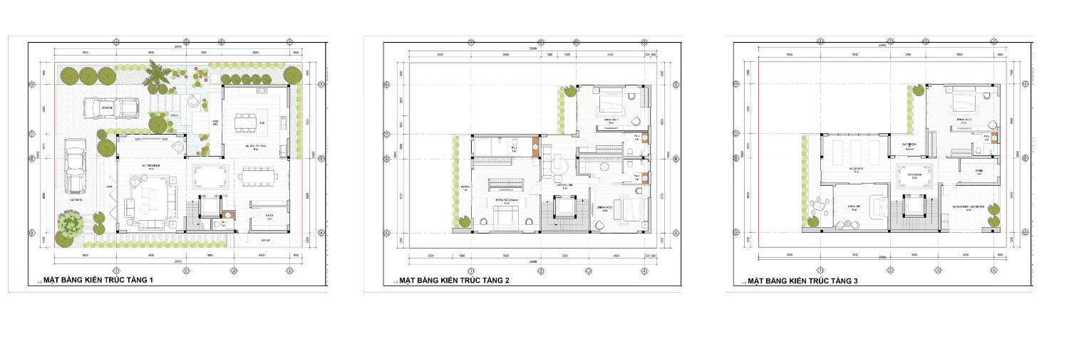
Bản vẽ thiết kế nhà 3 tầng đẹp hiện đại
Biệt thự 3 tầng mái Nhật được thiết kế theo kiểu chữ L với không gian rộng rãi gia chủ sinh hoạt. Mặt bằng kiến trúc được thiết kế gồm sân vườn xung quanh, tầng 1 sẽ bố trí phòng khách, bếp; tầng 2 được bố trí 3 phòng ngủ, phòng sinh hoạt chung; tầng 3 bố trí phòng thờ, phòng ngủ sân thượng, khu giặc phơi.

Thông tin chi tiết dự án biệt thự 3 tầng mái Nhật
- Chủ đầu tư: Anh Gia Huy
- Địa chỉ: Thái Bình (cũ)
- Diện tích: 8x13m
- Thiết kế: Công ty kiến trúc KASAI
Biệt thự 3 tầng mái Nhật vừa hiện đại lại sang trọng với những đường cong đầy thu hút. Nếu bạn cũng thích một kiểu nha đẹp lạ như vậy đừng chần chừ liên hệ KASAI tư vấn ngay nhé!
Thông tin liên hệ và báo giá
- Liên hệ: 0931393270 – 0972903570
- FACEBOOK: https://www.facebook.com/Ceoluuhonglam/
- FANFAGE: https://www.facebook.com/xaydungkasai
- WEBSITE: https://kasai.com.vn/ – https://thietkenhakasai.com/
- ZALO: 0931393270 – 0972903570
Địa chỉ chi nhánh:
- Đà Nẵng: 62 Xuân Thủy – Cẩm Lệ – Đà Nẵng
- Hà Nội CN1: Số 80 đường Đa Phúc, xã Đa Phúc, thành phố Hà Nội
- Hà Nội CN2: Tòa nhà BRC, số 5/76 Trần Thái Tông, phường Nghĩa Đô, Hà Nội
- Hà Nội CN3: Tầng 4, Tháp B1 Roman Plaza, Tố Hữu, phường Xuân Phương, Hà Nội
- Hải Phòng: 16 lô 3B KĐTM Lê Hồng Phong, phường Ngô Quyền, TP. Hải Phòng
- Nghệ An CN1: 23 Nguyễn Phong Sắc, phường Trường Vinh, TP. Vinh, tỉnh Nghệ An
- Nghệ An CN2: 42 Phan Đình Phùng, phường Thành Vinh, TP. Vinh, tỉnh Nghệ An
- Hà Tĩnh CN1: Tầng 6 – Bình Thủy Building, 24A đường Phan Đình Phùng, phường Thành Sen, TP. Hà Tĩnh
- Hà Tĩnh CN2: 570 Đ. Lê Đại Hành, phường Sông Trí, TX. Kỳ Anh, Hà Tĩnh
- Quảng Trị (trước thuộc Quảng Bình): 136 Lý Thường Kiệt, phường Đồng Hới, TP. Đồng Hới, tỉnh Quảng Trị
- Hồ Chí Minh CN1: 142 Võ Văn Tần, phường Xuân Hòa, TP. Hồ Chí Minh
- Hồ Chí Minh CN2: Tầng 9 – 85 Cách Mạng Tháng Tám, phường Bến Thành, TP. Hồ Chí Minh
- CN Tây Nguyên: 181 Ama Khê, Buôn Ma Thuột, Đắk Lắk

